Den kraftfullaste GRATIS-programvaran på marknaden för trätak!
Skapa ditt detaljerade tak på bara några minuter!

Kraftfullt och gratis: Takguiden (assistenten) för enkel takdesign med många planritningar och takformer att välja mellan
Kontroll av huvudkonstruktionen i trä: sparrar, åsar (fot-/under-, mellan- och nockåsar), hanbjälkar med mera
Hantering av lätta träkonstruktioner: läkt/ströläkt och brädning
Mata in detaljer som HAP-parametrar (Height Above Plate) för att definiera åsarnas position i förhållande till sparrarna
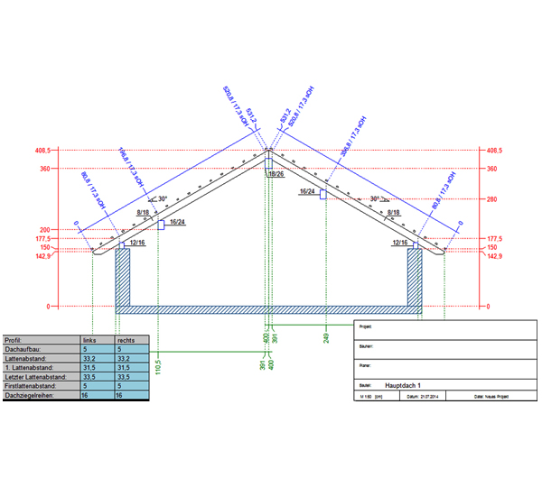
Teknisk ritning av takprofilens höjdvy

  • Enkelt och innovativt 3D-arbetsläge
  • Automatisk infogning av takfönster/skorstenar och anpassning av trästommen
  • Enkel och kraftfull takassistent (guide)
  • Automatisk teknisk ritning av takprofilens höjdvy
  • Snickarens virkeslista
  • Beräkning av virkeslista för hela konstruktionen
  • Automatisk måttsättning av takprofilens höjdvy

Ladda ner Liberta, det är GRATIS!