Scalinata
Gratis trapprogramvara
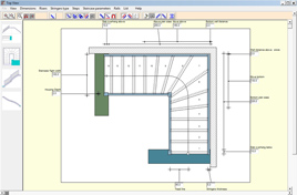
Med Scalinata kan du utforma din trappa på bara några minuter!
Trapptyper:
- Raka trappor
- L- eller U-trappa med vilplan
- L- eller U-formad svängd trappa
- U-trappor med dubbla vilplan
- U-trappa (dubbel L-form)
Tekniska detaljer:
- Enkel/dubbel konstruktion av vangstycken
- Automatiskt väggledstång och vangsräcke
- Sättsteg på/av
- Trappräcks-stolpe på/av
- Rundade hörn och andra detaljer!